

Båthus i Lygre Småbåthavn
Meld interesseHos Eger Bygg AS kan du vite at det som blir avtalt blir overholdt. Vi har siden oppstart hatt stort fokus på at vi skal overholde dette, og har derfor implementert det som slagord i vår logo, for at alle skal vite at dette er viktig for oss.
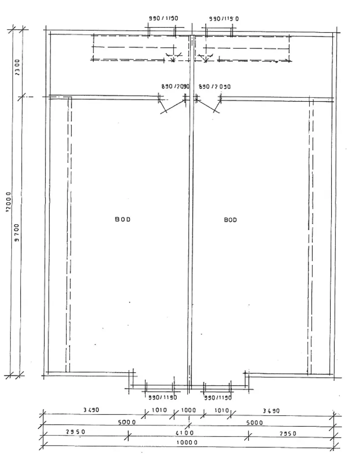
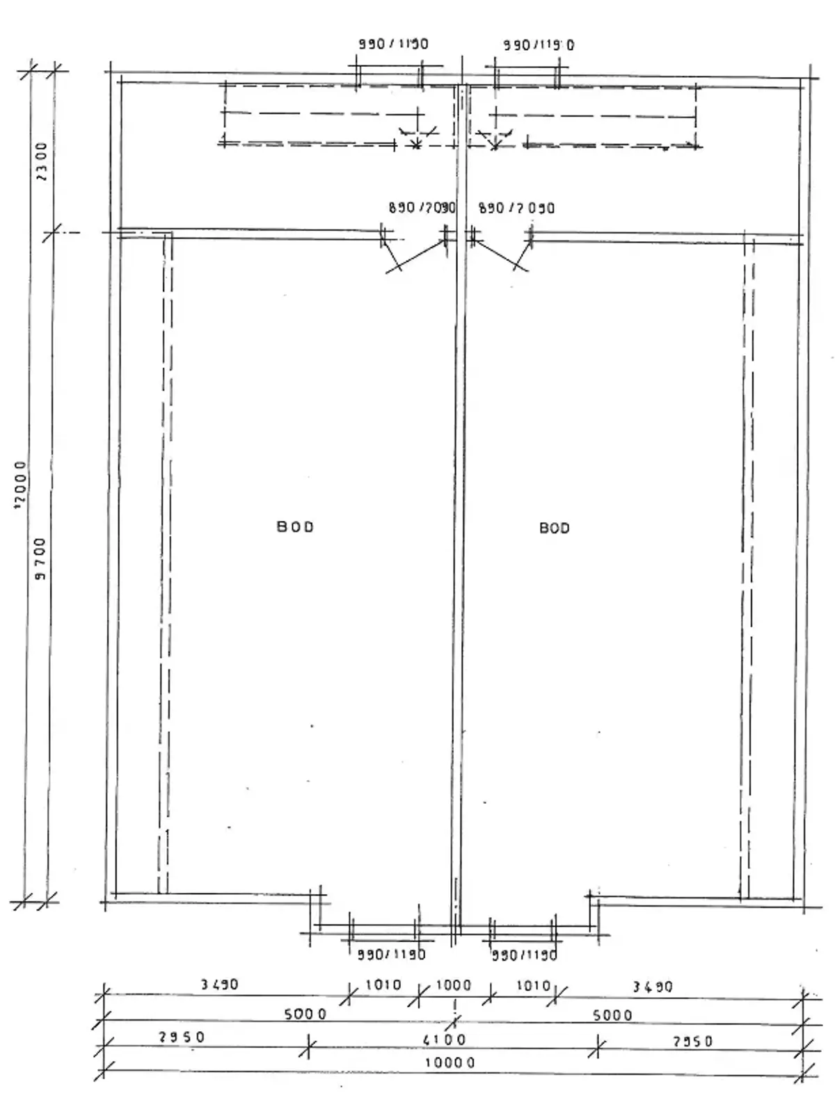
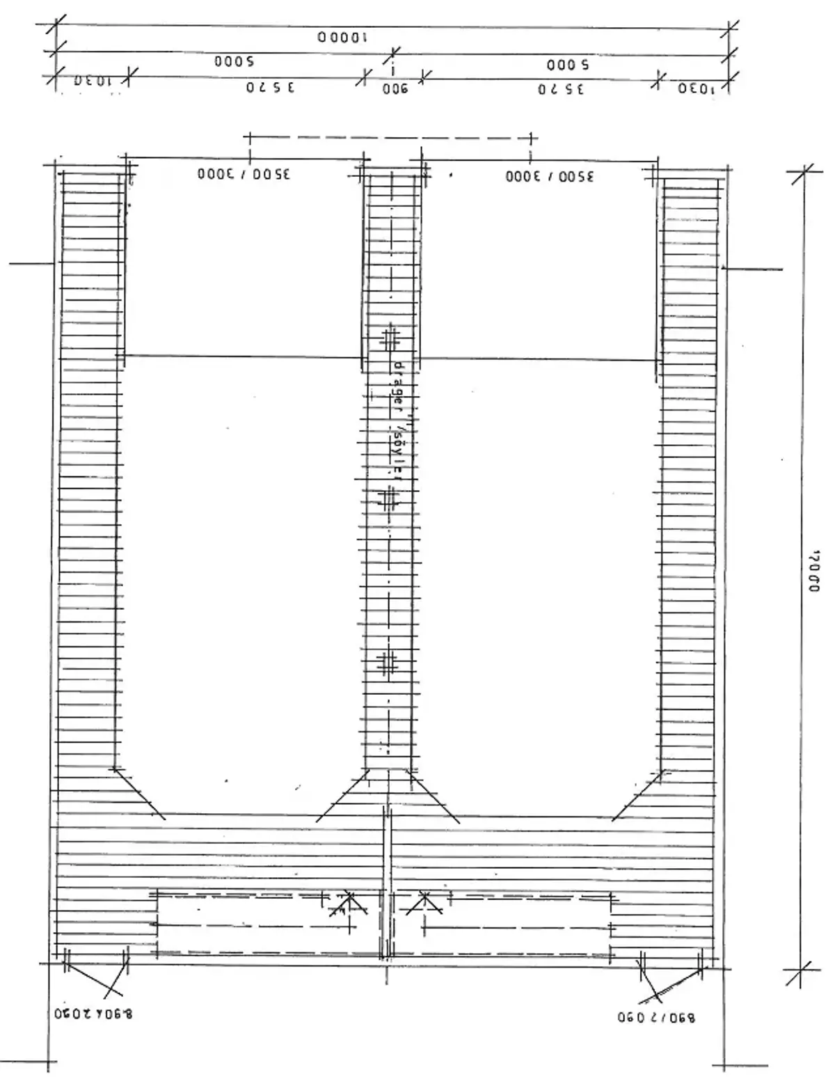
Her har vi satt opp et vertikaldelt naust på 33,3 kvadratmeter, med to båtplasser og to tilhørende u-innredet loft. Naustet ligger inne i Indre Lygre med rolige og behagelige omgivelser. Det er kort avstand til nærmeste matvarebutikk og andre fasiliteter som Egersund har å tilby. Vi har også flere tomter for videre bygging av nye båthus.
For mer informasjon, ta kontakt ved å bruke kontaktskjemaet på høyre side eller ring nummeret som står under kontaktskjemaet.






Båthus i Lygre Småbåthavn
Meld interesseHos Eger Bygg AS kan du vite at det som blir avtalt blir overholdt. Vi har siden oppstart hatt stort fokus på at vi skal overholde dette, og har derfor implementert det som slagord i vår logo, for at alle skal vite at dette er viktig for oss.