

Søylandslia
Meld interesseHos Eger Bygg AS kan du vite at det som blir avtalt blir overholdt. Vi har siden oppstart hatt stort fokus på at vi skal overholde dette, og har derfor implementert det som slagord i vår logo, for at alle skal vite at dette er viktig for oss.
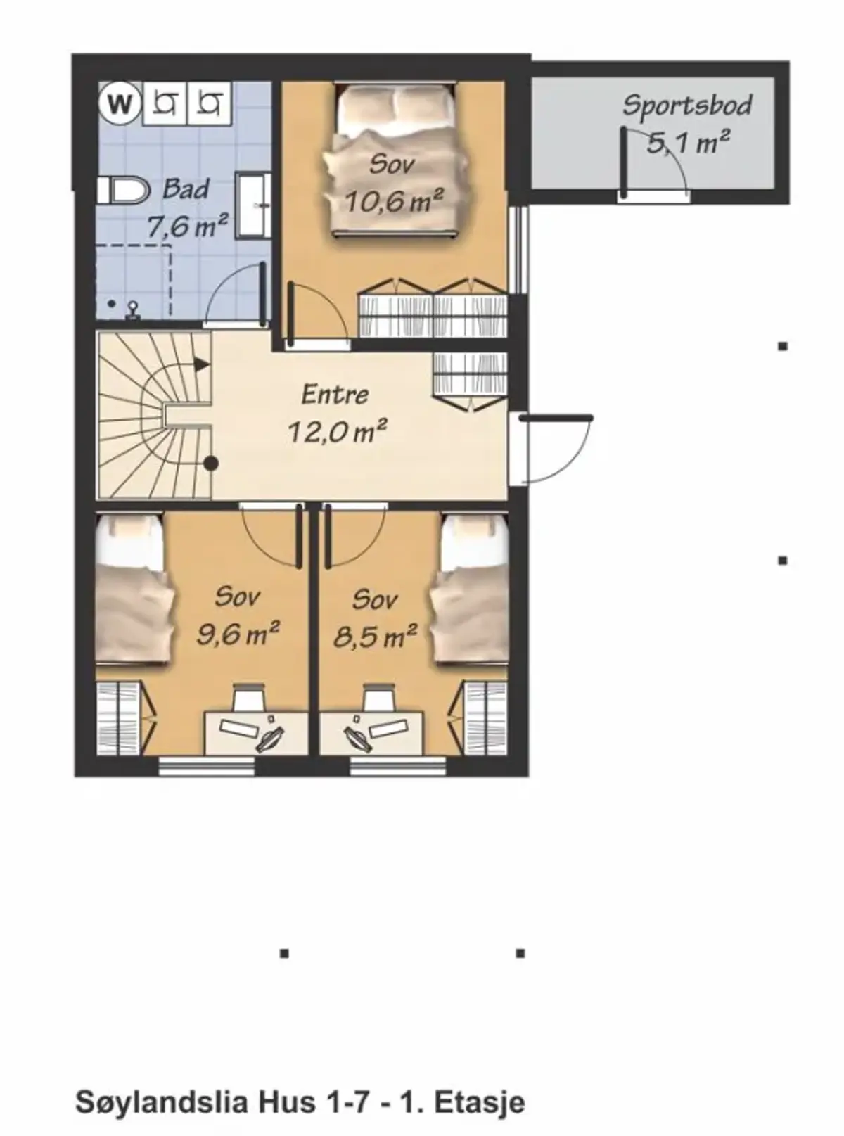
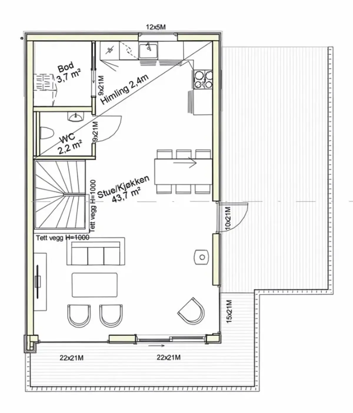
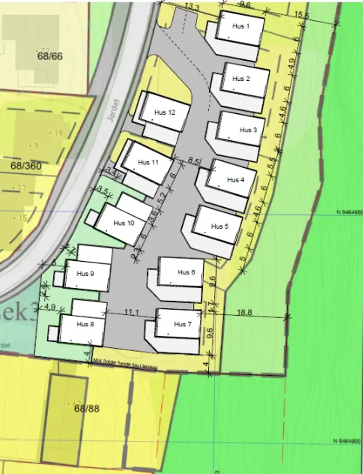
Et nytt og spennende boligfelt, Søylandslia, ligger bare minutters gange fra Flekkefjord sentrum. I den skogkledde hellingen legges det til rette for rundt 12 varierte og funksjonelle boliger. De vil ligge naturskjønt og solfylt til, og imøtekomme behovene til dagens og fremtidens flekkefjæringer på en god måte. Den bærende ideen i prosjektet er tilpasning – både til huseiere og til terreng. Området vil bli utviklet etappevis, slik at plassering og utforming kan gis tid og omtanke. Terrenget er sørvestvendt og ligger lunt til, med rikelig soltilgang og turterreng i umiddelbar nærhet. Søyland skole og et helt nytt aktivitetsanlegg ligger et steinkast unna boligfeltet. Flekkefjords tjenestetilbud og fasiliteter er lett tilgjengelige, og avstanden til byens nøkkelbedrifter ikke lang. Her skal det skapes et trygt og vennlig boligområde, med rom for individuelle løsninger.












Søylandslia
Meld interesseHos Eger Bygg AS kan du vite at det som blir avtalt blir overholdt. Vi har siden oppstart hatt stort fokus på at vi skal overholde dette, og har derfor implementert det som slagord i vår logo, for at alle skal vite at dette er viktig for oss.